- ホーム
- 新築一戸建てをエリアから探す
- 船橋市
- 松が丘
- 〇船橋市松が丘5期





東葉高速線「北習志野」駅 徒歩約15分
京成松戸線「北習志野」駅 徒歩約15分
◆◇◆設備◆◇◆
ペットに通年の空調や災害時にも安心の太陽光発電システム付♪
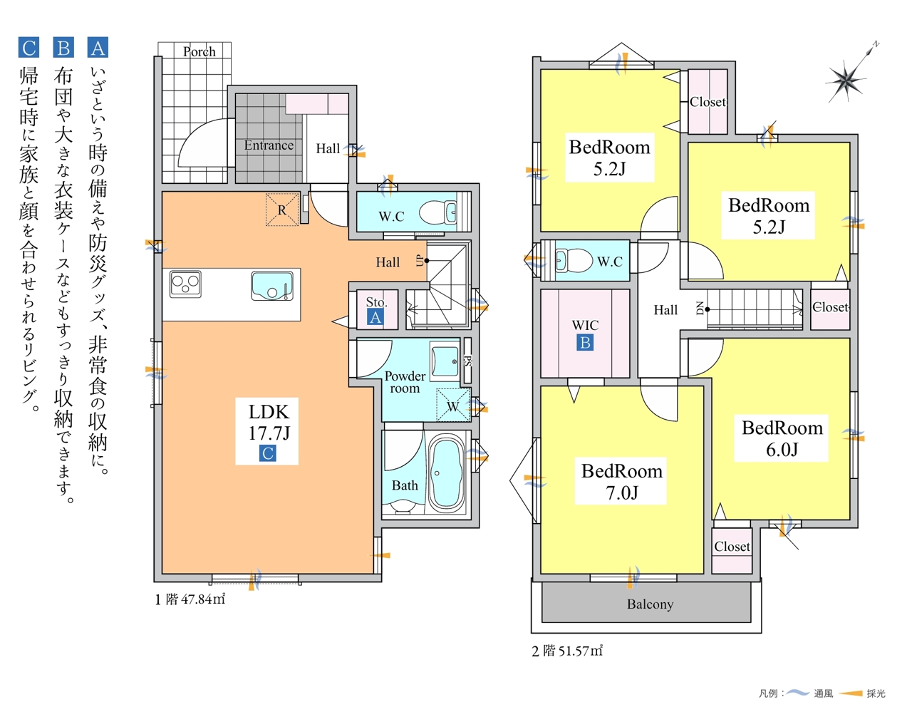
掃除用具などがスッキリ片付くリビング収納付き♪
税制面でも優遇のある長期優良住宅♪
公園や保育施設・小中学校が徒歩10分圏内にあり小さなお子様のいるご家庭に安心♪
◆◇◆周辺環境◆◇◆
市立高根第二小学校 徒歩約6分
市立高根台中学校 徒歩約7分
セブンイレブン 徒歩約2分
マルエツ 徒歩約12分
高根木戸近隣公園 徒歩約2分
すべての画像
その他現地
Felidiaに標準仕様の遮熱シートは、通気層構法における外装下地材として、高い性能を発揮します。 夏涼しく冬暖かいという遮熱性能と、躯体の劣化や腐敗を防ぐ透湿・防水性能に優れているだけでなく、これらの性能が長続きする、強靭な建材です。
高い断熱クオリティをもつ断熱樹脂サッシは、ハイレベルの断熱性能を実現し、次世代省エネルギー基準に適合します。 Low-E複層ガラスの断熱性能は、単板ガラスの約4倍にも及び、その高い断熱効果から冷暖房費を大幅に節約することができます。
壁のコーナーをR状に丸めることで不意の衝突時の衝撃を和らげ、怪我の原因を減らします。
室と浴室との段差をなくし、つまずきや転倒を防ぎます。
「ベタ基礎」と呼ばれる、建物の底板一面を鉄筋コンクリートで支える基礎(耐圧盤)を採用しています。一般的な「布基礎」と呼ばれる1階の壁下のみに基礎を配置する形と異なり、家の荷重を底板全体で受け止め建物を支えるため、負荷が分散され安定性に優れます。耐圧盤コンクリートは150mm厚で不等沈下を抑制します。
既調合弾性ポリマーセメントモルタルに着色剤を配合した弾性カラーモルタルです。特徴として住宅基礎表面の微細なクラックの発生を軽減し、地面からの水の浸入を抑制することで、長期的に美観を維持します。また汚染を防ぎ、基礎コンクリートの中性化を抑制し、耐久性を向上させます
メーターモジュールの建物に4寸角の柱・土台を標準仕様としています。建築基準法に定められた3.5寸角と比べて、4寸角は約1.3倍の断面積で強度がアップします。さらに柱が太くなることによって、万が一の火事の場合でも柱の内部まで火が到達するのに時間を要するため、耐火性も向上します。
担当スタッフより

- 安藤 順一
- お客様の住まいを見つけるお手伝いができることを光栄に思います。不動産の専門知識を活かし、よりよい提案ができれば幸いです。
物件詳細情報
物件No.31023319391
| 所在地 | 千葉県船橋市松が丘4丁目 | ||
|---|---|---|---|
| 交通 | 東葉高速鉄道「北習志野」駅徒歩15分 京成松戸線「北習志野」駅徒歩15分 京成松戸線「高根木戸」駅徒歩18分 |
||
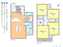
| 間取 | 4LDK (LDK17.7帖、洋室7帖、洋室6帖、洋室5.2帖、洋室5.2帖) | ||
| 土地面積 | 103.78m² 実測 | ||
| 建物面積 | 99.41m² | ||
| 販売戸数 | 1戸 | 総戸数 | 全1戸 |
| 構造・規模 | 木造 2階建て | 築年・入居 | 2026年2月 |
| バルコニー | 南東向き | 建物現況 | 建築中 |
| 建築確認番号 | 第25UDI1T10700号 | 駐車スペース | 1台(カースペース) |
| 引渡時期 | 相談 | 国土法届出 | 不要 |
| 地目 | 宅地 | 用途地域 | 第一種低層住居専用地域 |
| 建ぺい率 | 50% | 容積率 | 100% |
| 都市計画 | 市街化区域 | 権利種類 | 所有権 |
| 接道 | 北西側4.9M公道に接道 | 小学校区 | 市立高根第二小学校(480m) |
| 中学校区 | 市立高根台中学校(560m) | 取引態様 | 媒介 |
| 設備 | 公営水道、本下水、オール電化 | ||
| 省エネ性能表示 | 再エネ設備:あり エネルギー消費性能:★★★★★★ 断熱性能:5段階 |
||
| その他制限事項 | 日影制限有 | ||
こだわり項目
- ※価格は物件の代金総額を表示しており、消費税が課税される場合は税込み価格です。(1,000円未満は切り上げ。)
税率は引き渡し時期により異なりますので、各物件の詳細につきましてはお問い合わせください。 - ※敷地権利が借地権のものは価格に権利金を含みます。
- ※制作中に内容が変更される場合もありますので、あらかじめご了承ください。
- ※購入の前には物件内容や契約条件についてご自身で十分な確認をしていただくようにお願いいたします。
- ※完成予想図はいずれも外構、植栽、外観等実際のものとは多少異なることがあります。
- ※CG合成の画像の場合、実際とは多少異なる場合があります。
周辺地図
周辺施設一覧
- ショッピングセンター
- スーパー
- コンビニ
- ドラッグストア
- ホームセンター
- 飲食店
- その他店舗
- 商店街
- 大学
- 専門学校
- 高校・高専
- 中学校
- 小学校
- 保育園
- 幼稚園
- 公民館・児童館
- 病院
- 郵便局
- 役所
- 図書館
- 金融機関
- 警察・消防
- 趣味・娯楽施設
- 公園・運動施設
- 周辺の街並み
- 駅
- その他
お問い合せ先
- 株式会社TKネクスト 八千代支店
- お電話でのお問い合わせは
047-406-4853「ホームページを見た」とお問い合わせください - 千葉県八千代市萱田町593-22 IPセンタービル2F
- 営業時間:9:30~18:30
- 定休日:毎週水曜日
- 免許番号:国土交通大臣(1)第10795号











