- ホーム
- 中古住宅をエリアから探す
- 船橋市
- 坪井東
- 船橋市坪井東1丁目 中古戸建


◆◇◆アクセス◆◇◆
東葉高速線「船橋日大前」駅 徒歩約4分
◆◇◆設備◆◇◆
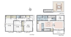
プライバシーが確保可能な2階にLDKや水場があります♪
テレワークなどに活用できる書斎あり♪
全室6帖以上のゆとりのある居室♪
◆◇◆周辺環境◆◇◆
市立坪井小学校 徒歩約9分
市立坪井中学校 徒歩約5分
TOP 徒歩約7分
東葉高速線「船橋日大前」駅 徒歩約4分
◆◇◆設備◆◇◆
プライバシーが確保可能な2階にLDKや水場があります♪
テレワークなどに活用できる書斎あり♪
全室6帖以上のゆとりのある居室♪
◆◇◆周辺環境◆◇◆
市立坪井小学校 徒歩約9分
市立坪井中学校 徒歩約5分
TOP 徒歩約7分
担当スタッフより

- 安藤 順一
- お客様の住まいを見つけるお手伝いができることを光栄に思います。不動産の専門知識を活かし、よりよい提案ができれば幸いです。
物件詳細情報
物件No.31022288911
| 所在地 | 千葉県船橋市坪井東1丁目 | ||
|---|---|---|---|
| 交通 | 東葉高速鉄道「船橋日大前」駅徒歩4分 | ||
| 間取 | 4LDK (LDK17帖、洋室6.5帖、S6帖、S8帖、S3帖) | ||
| 土地面積 | 100m² | ||
| 建物面積 | 98.93m² | ||
| 構造・規模 | 木造 2階建て | 築年月 | 2020年9月築 |
| バルコニー | 南向き | 地目 | 宅地 |
| 用途地域 | 第一種低層住居専用地域 | 建ぺい率 | 50% |
| 容積率 | 100% | 都市計画 | 市街化区域 |
| 駐車スペース | 1台(カースペース) | 現況 | 空家 |
| 引渡時期 | 即引渡可 | 権利種類 | 所有権 |
| 接道 | 東側4M私道に接道 | 小学校区 | 市立坪井小学校(650m) |
| 中学校区 | 市立坪井中学校(350m) | 取引態様 | 媒介 |
| リフォーム |
|
||
| 設備 | 公営水道、本下水、都市ガス | ||
こだわり項目
高台整形地緑豊かな住宅地閑静な住宅地LDK15帖以上耐震構造制震構造リフォーム済み南向き全室南向き全居室収納複層ガラス床暖房食器洗浄機浄水器省エネ給湯器ガスコンロシステムキッチン3口以上コンロパントリー(食器・食品の収納庫)トイレ2ヶ所温水洗浄便座シャワー付洗面台浴室乾燥機浴室暖房追焚機能浴室1坪以上浴室に窓オートバス全居室フローリングTVモニタ付インターホンEV車充電設備24時間換気システム小学校800m以内保育園・幼稚園800m以内公園800m以内陽当り良好通風良好眺望良好フラット35Sに対応
- ※価格は物件の代金総額を表示しており、消費税が課税される場合は税込み価格です。(1,000円未満は切り上げ。)
税率は引き渡し時期により異なりますので、各物件の詳細につきましてはお問い合わせください。 - ※敷地権利が借地権のものは価格に権利金を含みます。
- ※制作中に内容が変更される場合もありますので、あらかじめご了承ください。
- ※購入の前には物件内容や契約条件についてご自身で十分な確認をしていただくようにお願いいたします。
- ※完成予想図はいずれも外構、植栽、外観等実際のものとは多少異なることがあります。
- ※CG合成の画像の場合、実際とは多少異なる場合があります。
周辺地図
周辺施設一覧
- ショッピングセンター
- スーパー
- コンビニ
- ドラッグストア
- ホームセンター
- 飲食店
- その他店舗
- 商店街
- 大学
- 専門学校
- 高校・高専
- 中学校
- 小学校
- 保育園
- 幼稚園
- 公民館・児童館
- 病院
- 郵便局
- 役所
- 図書館
- 金融機関
- 警察・消防
- 趣味・娯楽施設
- 公園・運動施設
- 周辺の街並み
- 駅
- その他
お問い合せ先
- 株式会社TKネクスト 八千代支店
- お電話でのお問い合わせは
047-406-4853「ホームページを見た」とお問い合わせください - 千葉県八千代市萱田町593-22 IPセンタービル2F
- 営業時間:9:30~18:30
- 定休日:毎週水曜日
- 免許番号:国土交通大臣(1)第10795号
- ホーム
- 中古住宅をエリアから探す
- 船橋市
- 坪井東
- 船橋市坪井東1丁目 中古戸建







