- ホーム
- 新築一戸建てをエリアから探す
- 柏市
- 戸張
- 柏市戸張第8 新築戸建 全2棟
柏市戸張第8 新築戸建 全2棟
情報更新日:2026/04/17 次回更新予定日:2026/05/01 取引条件有効期限:2026/05/01
所在地千葉県柏市戸張[周辺地図]
交 通常磐線「柏」駅徒歩26分





□大切なご家族と住まいを守る「住宅性能評価書」を取得♪
□南西向きで陽当り良好♪
□防犯カメラ・人感センサー付き玄関灯で充実のセキュリティ!
□ご家族みんながゆったりくつろげる広々リビング♪
□お料理が楽しくなる人気の対面式キッチン♪
□1坪以上ある浴室でゆったりリラクゼーション♪
【周辺環境】
□第五小学校:徒歩16分
□第二中学校:徒歩7分
□東町保育園:徒歩11分
□吉田幼稚園:徒歩9分
□西友柏東店:徒歩15分
□セブンイレブン柏東台店:徒歩10分
□マツモトキヨシ柏千代田店:徒歩19分
□柏東台郵便局:徒歩14分
□戸張地区公園:徒歩10分
- すべて(24)
- 外観・パース(10)
- 内観(0)
- 間取・区画(7)
- その他(0)
- 動画
すべての画像
2号棟
地盤調査
住宅に不同沈下(地盤が家の重さに耐えられず不均等に沈下すること)等の事故が発生すると、その修復は大掛かりなものとなります。このリスクを減らすために当社は地盤調査を外部機関に委託して実施し、その調査データに基づいて地盤改良(補強)工事を行います。
ベタ基礎
通常の木造住宅のベタ基礎工事では、13mm鉄筋が多く使われます。しかし当社では自主基準として全戸の基礎の主筋に16mm鉄筋を採用。16mm鉄筋を用いて子会社アーネストウイング社が生産するユニット鉄筋を使用した基礎は、強度比較試験において建築基準法で定められた配筋による基礎強度を大きく上回っています。
ベタ基礎
基礎の立ち上がり部分の幅を30mm大きく取ることで基礎にかかる上下の力(せん断力)に対抗する力が増し強い基礎ができます。
制震構造クワイエ
当社の2階建分譲住宅は、建築基準法で定められた壁量の1.5倍の性能を備えています。さらに耐久性向上のため、共同開発の制震装置(SAFE365)を搭載し、コスト低減も実現。地震の揺れに耐える「耐震性能」と揺れを抑える「制震性能」を兼ね備えた住宅ブランド「QUIE」。ふたつの備えで、大切な住まいを守ります。
木材品質
基礎工事に使用される生コンクリートは、見た目には分からなくても品質にばらつきがある可能性があります。当社では、住友林業(株)(木材建材事業本部)に発注することで、JIS認定の品質を提供しています。木造建築において、この管理体制を行うことが、アーネストワンの強みです。
換気口ウェザーキャップ
意外に知られていないのが、給気口にあるウェザーキャップが取り外せること。簡単に取り外せる利点は、給気口のお手入れをお客様自身でできることです。
防蟻・防腐処理
建材に使われる防腐・防蟻剤は健康にも配慮している上に、乾式注入という特別な加工法がとられ、木材から薬剤が揮発することがありません。
担当スタッフより

- 福島 大地
- 即日ご案内可能☆好評販売中に付き、還元キャンペーン実施中です!詳細はTKネクストまでお問合せ下さいませ(^^♪
各棟情報
物件詳細情報
物件No.20000449768
| 所在地 | 千葉県柏市戸張 | ||
|---|---|---|---|
| 交通 | 常磐線「柏」駅徒歩26分 常磐線「柏」駅バス12分 バス停「「柏学園前」停留所」停歩9分 常磐線「北柏」駅徒歩36分 |
||
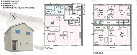
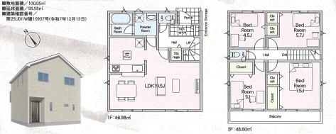
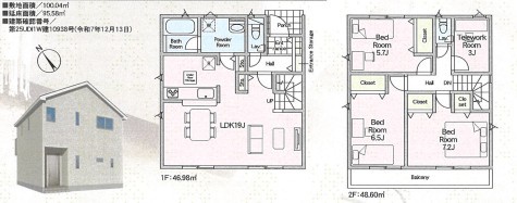
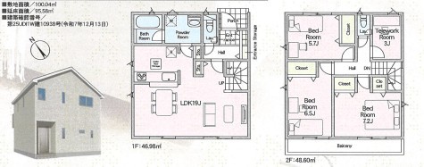
| 間取 | 3LDK~4LDK | ||
| 土地面積 | 100.04m² ~ 100.05m² 公簿 | ||
| 建物面積 | 95.58m² ~ 95.58m² 公簿 | ||
| 販売戸数 | 2戸 | 総戸数 | 全2戸 |
| 構造・規模 | 木造 2階建て | 築年・入居 | 2026年4月下旬 |
| バルコニー | 南西向き | 建物現況 | 建築中 |
| 建築確認番号 | 第25UDI1W建10937号、他 | 駐車スペース | 1台(カースペース:縦列) |
| 引渡時期 | 相談 | 施工会社 | 株式会社アーネストワン |
| 国土法届出 | 不要 | 地目 | 宅地 |
| 用途地域 | 第一種低層住居専用地域 | 建ぺい率 | 50% |
| 容積率 | 100% | 都市計画 | 市街化区域 |
| 権利種類 | 所有権 | 接道 | 北東側5M公道に接道 |
| 小学校区 | 柏市立第五小学校(990m) | 中学校区 | 柏市立第二中学校(660m) |
| 取引態様 | 媒介 | ||
| 設備 | 公営水道、本下水、都市ガス | ||
| その他制限事項 | 高さ最高限度有、日影制限有 | ||
こだわり項目
- ※価格は物件の代金総額を表示しており、消費税が課税される場合は税込み価格です。(1,000円未満は切り上げ。)
税率は引き渡し時期により異なりますので、各物件の詳細につきましてはお問い合わせください。 - ※敷地権利が借地権のものは価格に権利金を含みます。
- ※制作中に内容が変更される場合もありますので、あらかじめご了承ください。
- ※購入の前には物件内容や契約条件についてご自身で十分な確認をしていただくようにお願いいたします。
- ※完成予想図はいずれも外構、植栽、外観等実際のものとは多少異なることがあります。
- ※CG合成の画像の場合、実際とは多少異なる場合があります。
周辺地図
周辺施設一覧
- ショッピングセンター
- スーパー
- コンビニ
- ドラッグストア
- ホームセンター
- 飲食店
- その他店舗
- 商店街
- 大学
- 専門学校
- 高校・高専
- 中学校
- 小学校
- 保育園
- 幼稚園
- 公民館・児童館
- 病院
- 郵便局
- 役所
- 図書館
- 金融機関
- 警察・消防
- 趣味・娯楽施設
- 公園・運動施設
- 周辺の街並み
- 駅
- その他
お問い合せ先
- 株式会社TKネクスト 松戸支店
- お電話でのお問い合わせは
047-710-6491「ホームページを見た」とお問い合わせください - 千葉県松戸市小金きよしケ丘2-5-1 ノック第3ビル2階・B
- 営業時間:9:30~18:30
- 定休日:毎週水曜日
- 免許番号:国土交通大臣(1)第10795号
- ホーム
- 新築一戸建てをエリアから探す
- 柏市
- 戸張
- 柏市戸張第8 新築戸建 全2棟


















