- ホーム
- 中古マンションをエリアから探す
- 横須賀市
- 大滝町
- リベレンス横須賀中央
中古マンション
リベレンス横須賀中央
情報更新日:2026/04/13 次回更新予定日:2026/04/27
所在地神奈川県横須賀市大滝町1丁目[周辺地図]
交 通京浜急行本線「横須賀中央」駅徒歩8分





◆アクセス◆
京浜急行本線「横須賀中央」駅 徒歩8分
京浜急行本線「汐入」駅 徒歩10分
JR横須賀線「横須賀」駅 徒歩15分
◆リフォーム◆
●システムキッチン交換●全室フローリング貼替
●ユニットバス交換●全室クロス貼替●トイレ交換
●健具交換●洗面台交換●照明設備交換
●給湯器交換●エアコン設置●玄関廊下タイル
●専用部分配管更新●カップボード設置
●洗濯機横:収納棚設置●クリーニング
◇ポイント◇
〇米軍基地近くベース賃貸も利用可
〇バルコニーからの眺望良好
〇2路線3駅利用可
◆周辺環境◆
諏訪小学校…約500m
常葉中学校…約750m
ヨークフーズ(さいか屋)…約270m
セブンイレブン…約140m
三笠公園…約600m
三笠幼稚園…約600m
京浜急行本線「横須賀中央」駅 徒歩8分
京浜急行本線「汐入」駅 徒歩10分
JR横須賀線「横須賀」駅 徒歩15分
◆リフォーム◆
●システムキッチン交換●全室フローリング貼替
●ユニットバス交換●全室クロス貼替●トイレ交換
●健具交換●洗面台交換●照明設備交換
●給湯器交換●エアコン設置●玄関廊下タイル
●専用部分配管更新●カップボード設置
●洗濯機横:収納棚設置●クリーニング
◇ポイント◇
〇米軍基地近くベース賃貸も利用可
〇バルコニーからの眺望良好
〇2路線3駅利用可
◆周辺環境◆
諏訪小学校…約500m
常葉中学校…約750m
ヨークフーズ(さいか屋)…約270m
セブンイレブン…約140m
三笠公園…約600m
三笠幼稚園…約600m
担当スタッフより

- 工藤 華純
- 2路線3駅利用可能の好立地物件になります♪近隣には食品スーパーも入る老舗百貨店「さいか屋」や海辺の開放感を味わえる「三笠公園」など徒歩圏内にあり休日の散策にもおすすめです♪些細な事でもお問合せ下さい♪
物件詳細情報
物件No.20000447450
| 所在地 | 神奈川県横須賀市大滝町1丁目 | ||
|---|---|---|---|
| 交通 | 京浜急行本線「横須賀中央」駅徒歩8分 京浜急行本線「汐入」駅徒歩10分 横須賀線「横須賀」駅徒歩15分 |
||
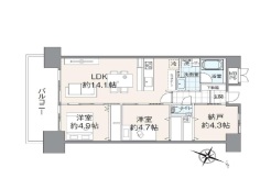
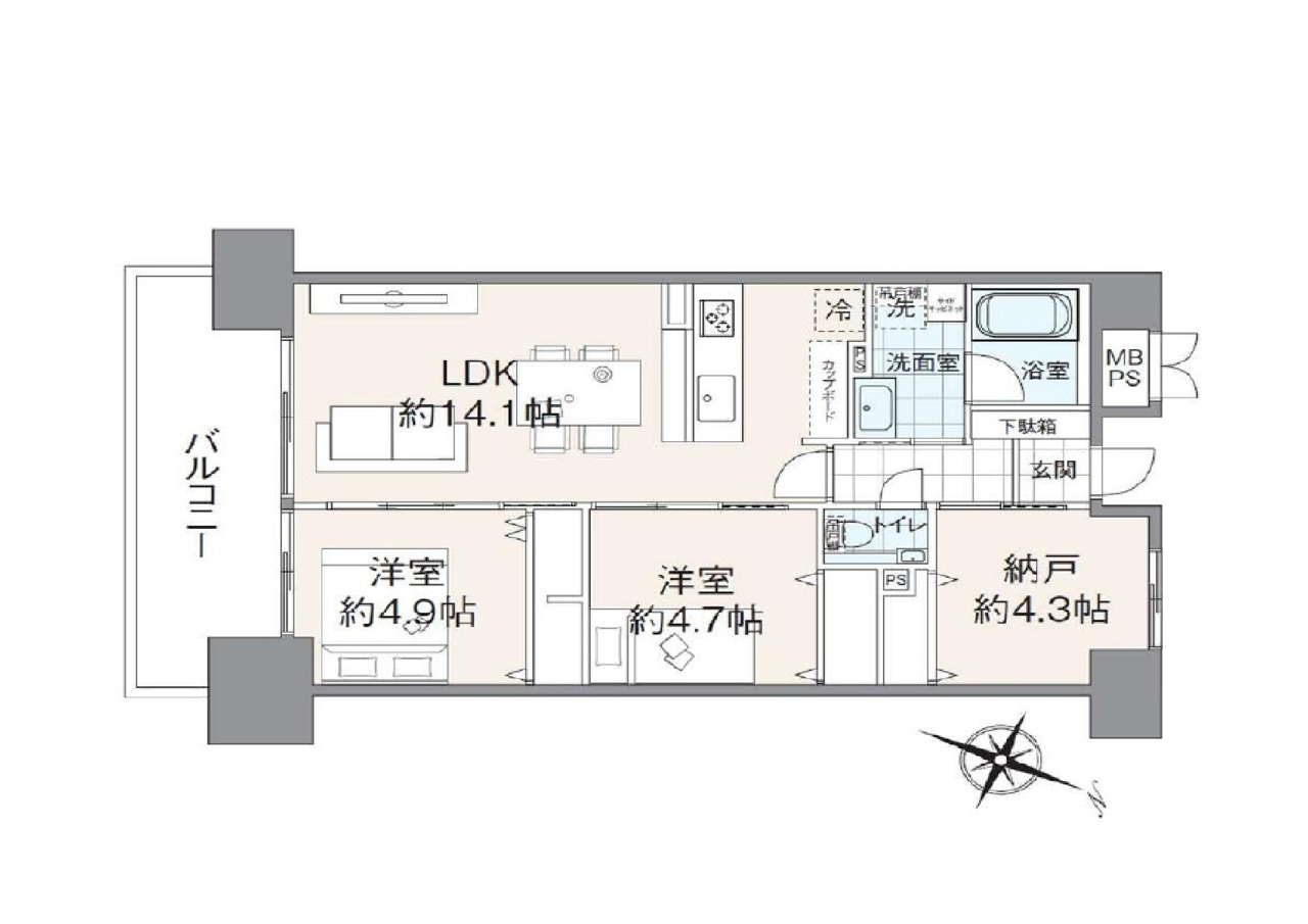
| 間取 | 2SLDK (LDK14.4帖、洋室4.9帖、洋室4.7帖、S4.3帖) | ||
| 専有面積 | 61.35m² (壁芯) | ||
| バルコニー面積 | 12m² 南向き | ||
| 販売戸数 | 1戸 | 総戸数 | 全66戸 |
| 構造・規模 | 鉄筋コンクリート造 11階建て 9階部分 |
築年・入居 | 2005年7月築 |
| 施工会社 | 馬淵建設株式会社 | 現況 | 空室 |
| 引渡時期 | 相談 | 権利種類 | 所有権 |
| 管理費 | 4,960円/月 | 修繕積立金 | 23,930円/月 |
| 管理形態 | 巡回 全部委託 | 管理会社 | 伊藤忠アーバンコミュニティ株式会社 |
| ペット | 可 | 小学校区 | 横須賀市立諏訪小学校(500m) |
| 中学校区 | 横須賀市立常葉中学校(750m) | 取引態様 | 媒介 |
| リフォーム |
|
||
| その他制限事項 | 景観法 | ||
| 備考・制限等 | 駐車場:有・駐輪場:有(空き情報要確認) | ||
こだわり項目
全居室収納リノベーションシステムキッチンカウンターキッチン室内洗濯機置き場オートロック24時間宅配ボックス24時間ゴミ出し可小学校800m以内保育園・幼稚園800m以内スーパー400m以内コンビニ400m以内公園800m以内海まで2km以内眺望良好
- ※価格は物件の代金総額を表示しており、消費税が課税される場合は税込み価格です。(1,000円未満は切り上げ。)
税率は引き渡し時期により異なりますので、各物件の詳細につきましてはお問い合わせください。 - ※敷地権利が借地権のものは価格に権利金を含みます。
- ※制作中に内容が変更される場合もありますので、あらかじめご了承ください。
- ※購入の前には物件内容や契約条件についてご自身で十分な確認をしていただくようにお願いいたします。
- ※完成予想図はいずれも外構、植栽、外観等実際のものとは多少異なることがあります。
- ※CG合成の画像の場合、実際とは多少異なる場合があります。
周辺地図
周辺施設一覧
- ショッピングセンター
- スーパー
- コンビニ
- ドラッグストア
- ホームセンター
- 飲食店
- その他店舗
- 商店街
- 大学
- 専門学校
- 高校・高専
- 中学校
- 小学校
- 保育園
- 幼稚園
- 公民館・児童館
- 病院
- 郵便局
- 役所
- 図書館
- 金融機関
- 警察・消防
- 趣味・娯楽施設
- 公園・運動施設
- 周辺の街並み
- 駅
- その他
お問い合せ先
- 株式会社TKネクスト 神奈川支店
- お電話でのお問い合わせは
046-874-4178「ホームページを見た」とお問い合わせください - 神奈川県横須賀市上町3-2-3 ビューライフヨコスカ1A
- 営業時間:9:30~18:30
- 定休日:毎週水曜日
- 免許番号:国土交通大臣(1)第10795号










