- ホーム
- 中古住宅をエリアから探す
- 入間郡三芳町
- 大字北永井
- 入間郡三芳町北永井 全4棟(2号棟)
中古住宅
入間郡三芳町北永井 全4棟(2号棟)
情報更新日:2026/04/28 次回更新予定日:2026/05/12
所在地埼玉県入間郡三芳町大字北永井[周辺地図]
交 通東武東上線「鶴瀬」駅徒歩31分





□認定低炭素住宅♪
□太陽光パネル+オール電化+エコキュート採用♪
□ご家族みんながゆったりくつろげる広々リビング♪
□ご家族の笑顔が見える人気の対面式キッチン♪
□収納力のあるウォークインクローゼット付!
□スカイバルコニーあり♪
【周辺環境】
□三芳小学校:徒歩20分
□三芳中学校:徒歩27分
□こすず幼稚園:徒歩18分
□三芳元氣保育園:徒歩12分
□ヤオコー三芳藤久保店:徒歩13分
□ローソン三芳藤久保北店:徒歩5分
□スギ薬局藤久保店:徒歩13分
□富士見鶴瀬西郵便局:徒歩17分
□三芳野病院:徒歩11分
□太陽光パネル+オール電化+エコキュート採用♪
□ご家族みんながゆったりくつろげる広々リビング♪
□ご家族の笑顔が見える人気の対面式キッチン♪
□収納力のあるウォークインクローゼット付!
□スカイバルコニーあり♪
【周辺環境】
□三芳小学校:徒歩20分
□三芳中学校:徒歩27分
□こすず幼稚園:徒歩18分
□三芳元氣保育園:徒歩12分
□ヤオコー三芳藤久保店:徒歩13分
□ローソン三芳藤久保北店:徒歩5分
□スギ薬局藤久保店:徒歩13分
□富士見鶴瀬西郵便局:徒歩17分
□三芳野病院:徒歩11分
担当スタッフより

- 福島 大地
- 太陽光パネル付きオール電化住宅!即ご案内可能です♪TKネクスト松戸支店までお気軽にお問い合わせください♪
物件詳細情報
物件No.20000447173
| 所在地 | 埼玉県入間郡三芳町大字北永井 | ||
|---|---|---|---|
| 交通 | 東武東上線「鶴瀬」駅徒歩31分 東武東上線「ふじみ野」駅徒歩39分 東武東上線「みずほ台」駅徒歩50分 |
||
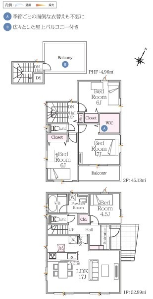
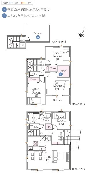
| 間取 | 4LDK (LDK17帖、洋室7帖、洋室6帖、洋室6帖、洋室4.5帖) | ||
| 土地面積 | 100m² 公簿 | ||
| 建物面積 | 103.08m² 公簿 | ||
| 構造・規模 | 木造 2階建て | 築年月 | 2023年8月築 |
| バルコニー | 南東向き | 国土法届出 | 不要 |
| 地目 | 宅地 | 用途地域 | 第一種住居地域 |
| 建ぺい率 | 60% | 容積率 | 200% |
| 都市計画 | 市街化区域 | 駐車スペース | 1台(カースペース) |
| 現況 | 空家 | 引渡時期 | 相談 |
| 権利種類 | 所有権 | 接道 | 北側4.2M私道に接道 東側4.2M私道に接道 |
| 小学校区 | 三芳小学校(1584m) | 中学校区 | 三芳中学校(2086m) |
| 取引態様 | 媒介 | ||
| 設備 | 公営水道、本下水、オール電化 | ||
| その他制限事項 | 景観法、高度地区、日影制限有 | ||
| 備考・制限等 | 法第22条区域 | ||
こだわり項目
整形地緑豊かな住宅地閑静な住宅地地盤調査済LDK15帖以上低炭素住宅全室2面採光3面採光床下収納全居室収納屋上複層ガラス食器洗浄機浄水器省エネ給湯器IHクッキングヒーターシステムキッチンカウンターキッチン3口以上コンロトイレ2ヶ所温水洗浄便座節水型トイレシャワー付洗面台浴室乾燥機浴室暖房追焚機能浴室1坪以上浴室に窓オートバス全居室フローリングウォークインクローゼットTVモニタ付インターホン太陽光発電システムEV車充電設備24時間換気システムコンビニ400m以内陽当り良好通風良好フラット35Sに対応フラット35・S適合証明書
- ※価格は物件の代金総額を表示しており、消費税が課税される場合は税込み価格です。(1,000円未満は切り上げ。)
税率は引き渡し時期により異なりますので、各物件の詳細につきましてはお問い合わせください。 - ※敷地権利が借地権のものは価格に権利金を含みます。
- ※制作中に内容が変更される場合もありますので、あらかじめご了承ください。
- ※購入の前には物件内容や契約条件についてご自身で十分な確認をしていただくようにお願いいたします。
- ※完成予想図はいずれも外構、植栽、外観等実際のものとは多少異なることがあります。
- ※CG合成の画像の場合、実際とは多少異なる場合があります。
周辺地図
周辺施設一覧
- ショッピングセンター
- スーパー
- コンビニ
- ドラッグストア
- ホームセンター
- 飲食店
- その他店舗
- 商店街
- 大学
- 専門学校
- 高校・高専
- 中学校
- 小学校
- 保育園
- 幼稚園
- 公民館・児童館
- 病院
- 郵便局
- 役所
- 図書館
- 金融機関
- 警察・消防
- 趣味・娯楽施設
- 公園・運動施設
- 周辺の街並み
- 駅
- その他
お問い合せ先
- 株式会社TKネクスト 松戸支店
- お電話でのお問い合わせは
047-710-6491「ホームページを見た」とお問い合わせください - 千葉県松戸市小金きよしケ丘2-5-1 ノック第3ビル2階・B
- 営業時間:9:30~18:30
- 定休日:毎週水曜日
- 免許番号:国土交通大臣(1)第10795号
- ホーム
- 中古住宅をエリアから探す
- 入間郡三芳町
- 大字北永井
- 入間郡三芳町北永井 全4棟(2号棟)















