- ホーム
- 中古住宅をエリアから探す
- 八街市
- 東吉田
- 八街市東吉田 中古戸建





~アクセス~
JR総武本線「八街」駅 車約11分
~設備~
◇料理をしながらでもリビングが見渡せる対面キッチン♪
◇大容量の収納スペースで住空間もスッキリ広々♪
◇すぐ横になれる和室は、みんながほっと一息つける空間♪
◇キッチンには勝手口つき、換気に便利です♪
◇駐車が苦手な方にも嬉しい前面6m道路に面した住まい♪
◇のびのびスローライフを叶える、閑静な住宅地♪
~周辺環境~
八街市立笹引小学校 徒歩約28分
八街市立八街中央中学校 徒歩約35分
八街文化幼稚園 徒歩約9分
セブンイレブン 徒歩約17分
ランドロームフードマーケット 徒歩約30分
公園 徒歩約1分
JR総武本線「八街」駅 車約11分
~設備~
◇料理をしながらでもリビングが見渡せる対面キッチン♪
◇大容量の収納スペースで住空間もスッキリ広々♪
◇すぐ横になれる和室は、みんながほっと一息つける空間♪
◇キッチンには勝手口つき、換気に便利です♪
◇駐車が苦手な方にも嬉しい前面6m道路に面した住まい♪
◇のびのびスローライフを叶える、閑静な住宅地♪
~周辺環境~
八街市立笹引小学校 徒歩約28分
八街市立八街中央中学校 徒歩約35分
八街文化幼稚園 徒歩約9分
セブンイレブン 徒歩約17分
ランドロームフードマーケット 徒歩約30分
公園 徒歩約1分
担当スタッフより

- 遠藤 政之
- 八街市東吉田のリフォーム済4LDK!南西道路で日当たり良好♪全室収納付きで使いやすい間取り!2台駐車が出来る駐車場はセカンドカーにも便利です♪まずは資料だけ…という方もお気軽にお問い合わせください♪
物件詳細情報
物件No.31021962123
| 所在地 | 千葉県八街市東吉田 | ||
|---|---|---|---|
| 交通 | 総武本線「八街」駅3.5km | ||
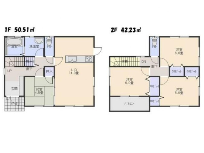
| 間取 | 4LDK (LD14帖、和室4.5帖、洋室6帖、洋室6帖、洋室6帖) | ||
| 土地面積 | 155.73m² 公簿 | ||
| 建物面積 | 92.74m² 公簿 | ||
| 構造・規模 | 木造 2階建て | 築年月 | 1999年10月築 |
| バルコニー | 南向き | 国土法届出 | 不要 |
| 地目 | 宅地 | 用途地域 | 無指定地域 |
| 建ぺい率 | 60% | 容積率 | 200% |
| 都市計画 | 未線引区域 | 駐車スペース | 2台可(カースペース:並列) |
| 現況 | 空家 | 引渡時期 | 即引渡可 |
| 権利種類 | 所有権 | 接道 | 南西側6M公道に10M接道 |
| 小学校区 | 八街市立笹引小学校(2200m) | 中学校区 | 八街市立八街中央中学校(2800m) |
| 取引態様 | 媒介 | ||
| リフォーム |
|
||
| 設備 | 公営水道、個別LPG | ||
こだわり項目
整形地緑豊かな住宅地閑静な住宅地リフォーム済み南向き南庭庭床下収納全居室収納ガスコンロシステムキッチンカウンターキッチン3口以上コンロトイレ2ヶ所温水洗浄便座シャワー付洗面台浴室乾燥機追焚機能浴室1坪以上浴室に窓オートバスTVモニタ付インターホン陽当り良好通風良好
- ※価格は物件の代金総額を表示しており、消費税が課税される場合は税込み価格です。(1,000円未満は切り上げ。)
税率は引き渡し時期により異なりますので、各物件の詳細につきましてはお問い合わせください。 - ※敷地権利が借地権のものは価格に権利金を含みます。
- ※制作中に内容が変更される場合もありますので、あらかじめご了承ください。
- ※購入の前には物件内容や契約条件についてご自身で十分な確認をしていただくようにお願いいたします。
- ※完成予想図はいずれも外構、植栽、外観等実際のものとは多少異なることがあります。
- ※CG合成の画像の場合、実際とは多少異なる場合があります。
周辺地図
周辺施設一覧
- ショッピングセンター
- スーパー
- コンビニ
- ドラッグストア
- ホームセンター
- 飲食店
- その他店舗
- 商店街
- 大学
- 専門学校
- 高校・高専
- 中学校
- 小学校
- 保育園
- 幼稚園
- 公民館・児童館
- 病院
- 郵便局
- 役所
- 図書館
- 金融機関
- 警察・消防
- 趣味・娯楽施設
- 公園・運動施設
- 周辺の街並み
- 駅
- その他
お問い合せ先
- 株式会社TKネクスト 成田支店
- お電話でのお問い合わせは
0476-85-5250「ホームページを見た」とお問い合わせください - 千葉県富里市七栄646-665 香山ビル207号室
- 営業時間:9:00~18:30
- 定休日:毎週水曜日
- 免許番号:国土交通大臣(1)第10795号
- ホーム
- 中古住宅をエリアから探す
- 八街市
- 東吉田
- 八街市東吉田 中古戸建






