- ホーム
- 中古マンションをエリアから探す
- 横須賀市
- 公郷町
- クリオ衣笠フィルソーレ





◆アクセス◆
JR横須賀線「衣笠」駅 徒歩7分
◆リノベーション◆
2025年7月リノベーション完工
■クロス貼替え
■浴室シャワーヘッド交換
■ビルトインコンロ交換
■トイレ交換
■給湯器交換
■クッションフロア交換
■その他備品交換
◆周辺環境◆
横須賀市立公郷小学校…約1040m
横須賀市立公郷中学校…約1200m
西友…約480m
ファミリーマート…約320m
クリエイトエスディー…約480m
JR横須賀線「衣笠」駅 徒歩7分
◆リノベーション◆
2025年7月リノベーション完工
■クロス貼替え
■浴室シャワーヘッド交換
■ビルトインコンロ交換
■トイレ交換
■給湯器交換
■クッションフロア交換
■その他備品交換
◆周辺環境◆
横須賀市立公郷小学校…約1040m
横須賀市立公郷中学校…約1200m
西友…約480m
ファミリーマート…約320m
クリエイトエスディー…約480m
担当スタッフより

- 工藤 華純
- JR横須賀「衣笠」駅徒歩7分の物件♪徒歩3分にある衣笠商店街は生活利便施設多数で暮らしやすいエリアです♪教育施設も徒歩15分圏内にありお子様の通学も通いやすいです♪些細な事でもお問合せ下さい♪
物件詳細情報
物件No.20000417298
| 所在地 | 神奈川県横須賀市公郷町2丁目 | ||
|---|---|---|---|
| 交通 | 横須賀線「衣笠」駅徒歩7分 京浜急行本線「県立大学」駅徒歩28分 京浜急行久里浜線「北久里浜」駅徒歩29分 |
||
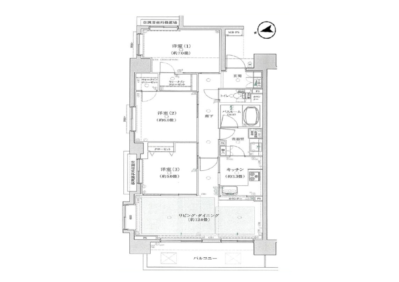
| 間取 | 3LDK (LDK12帖、洋室7帖、洋室6帖、洋室5帖) | ||
| 専有面積 | 76.26m² (壁芯) | ||
| バルコニー面積 | 9.81m² 西向き | ||
| 販売戸数 | 1戸 | 総戸数 | 全167戸 |
| 構造・規模 | 鉄筋コンクリート造 11階建て 8階部分 |
築年・入居 | 2008年12月築 |
| 施工会社 | 安藤建設株式会社 | 現況 | 空室 |
| 引渡時期 | 即引渡可 | 権利種類 | 所有権 |
| 管理費 | 11,590円/月 | 修繕積立金 | 13,650円/月 |
| 管理形態 | 日勤 全部委託 | 管理会社 | ユニオン・シティサービス株式会社 |
| 駐車場 | 敷地内にあり 料金:8,000 ~ 14,000円/月 | 駐輪場料金 | 200円/月 |
| バイク置場料金 | 2,000円〜3,000円/月 | ペット | 可 |
| ペット | 300円/月 | 本公郷町内会 | 350円/月 |
| 小学校区 | 横須賀市立公郷小学校(1040m) | 中学校区 | 横須賀市立公郷中学校(1200m) |
| 取引態様 | 媒介 | ||
| リフォーム |
|
||
| その他制限事項 | 景観法 | ||
こだわり項目
角部屋リフォーム済み全居室収納床暖房ガスコンロシステムキッチンカウンターキッチン3口以上コンロ浴室乾燥機浴室暖房追焚機能浴室1坪以上室内洗濯機置き場ウォークインクローゼットTVモニタ付インターホン駐輪場バイク置場全居室フローリング24時間ゴミ出し可コンビニ400m以内山が見える陽当り良好通風良好眺望良好
- ※価格は物件の代金総額を表示しており、消費税が課税される場合は税込み価格です。(1,000円未満は切り上げ。)
税率は引き渡し時期により異なりますので、各物件の詳細につきましてはお問い合わせください。 - ※敷地権利が借地権のものは価格に権利金を含みます。
- ※制作中に内容が変更される場合もありますので、あらかじめご了承ください。
- ※購入の前には物件内容や契約条件についてご自身で十分な確認をしていただくようにお願いいたします。
- ※完成予想図はいずれも外構、植栽、外観等実際のものとは多少異なることがあります。
- ※CG合成の画像の場合、実際とは多少異なる場合があります。
周辺地図
周辺施設一覧
- ショッピングセンター
- スーパー
- コンビニ
- ドラッグストア
- ホームセンター
- 飲食店
- その他店舗
- 商店街
- 大学
- 専門学校
- 高校・高専
- 中学校
- 小学校
- 保育園
- 幼稚園
- 公民館・児童館
- 病院
- 郵便局
- 役所
- 図書館
- 金融機関
- 警察・消防
- 趣味・娯楽施設
- 公園・運動施設
- 周辺の街並み
- 駅
- その他
お問い合せ先
- 株式会社TKネクスト 神奈川支店
- お電話でのお問い合わせは
046-874-4178「ホームページを見た」とお問い合わせください - 神奈川県横須賀市上町3-2-3 ビューライフヨコスカ1A
- 営業時間:9:30~18:30
- 定休日:毎週水曜日
- 免許番号:国土交通大臣(1)第10795号
- ホーム
- 中古マンションをエリアから探す
- 横須賀市
- 公郷町
- クリオ衣笠フィルソーレ







