- ホーム
- 中古住宅をエリアから探す
- 松戸市
- 常盤平西窪町
- 松戸市第1常盤平西窪町 中古戸建





【アクセス】
□新京成線「常盤平駅」徒歩11分・武蔵野線「新八柱駅」徒歩12分
【おすすめポイント】
□小学校まで徒歩4分♪中学校まで徒歩11分♪子育て世帯にも暮らしやすい魅力的な住環境♪
□開放的なリビングとカウンター付き対面キッチン♪
□陽当り・通風良好のリビング♪家族団らんの時間をゆったり過ごせる開放的な空間です♪
□全居室収納付!お家がスッキリ片付きます♪
□窓は断熱、防音に優れた複層ガラス♪
□カースペース2台分あり♪お車での移動が多いご家族も安心です♪
□新京成線「常盤平駅」徒歩11分・武蔵野線「新八柱駅」徒歩12分 通勤・通学にも便利♪
【周辺環境】
□常盤平第三小学校:徒歩4分
□常盤平中学校:徒歩11分
□ときわ平保育園:徒歩2分
□栴檀幼稚園:徒歩7分
□新京成線「常盤平駅」徒歩11分・武蔵野線「新八柱駅」徒歩12分
【おすすめポイント】
□小学校まで徒歩4分♪中学校まで徒歩11分♪子育て世帯にも暮らしやすい魅力的な住環境♪
□開放的なリビングとカウンター付き対面キッチン♪
□陽当り・通風良好のリビング♪家族団らんの時間をゆったり過ごせる開放的な空間です♪
□全居室収納付!お家がスッキリ片付きます♪
□窓は断熱、防音に優れた複層ガラス♪
□カースペース2台分あり♪お車での移動が多いご家族も安心です♪
□新京成線「常盤平駅」徒歩11分・武蔵野線「新八柱駅」徒歩12分 通勤・通学にも便利♪
【周辺環境】
□常盤平第三小学校:徒歩4分
□常盤平中学校:徒歩11分
□ときわ平保育園:徒歩2分
□栴檀幼稚園:徒歩7分
担当スタッフより

- 藏根 裕希
- 松戸市常盤平西窪町に中古戸建限定1棟登場です♪小学校まで徒歩4分!中学校まで徒歩11分!周辺環境にも恵まれた立地です♪
物件詳細情報
物件No.20000391293
| 所在地 | 千葉県松戸市常盤平西窪町 | ||
|---|---|---|---|
| 交通 | 京成松戸線「常盤平」駅徒歩12分 武蔵野線「新八柱」駅徒歩15分 京成松戸線「八柱」駅徒歩15分 |
||
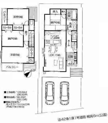
| 間取 | 4LDK (LDK15帖、洋室8帖、洋室6帖、洋室6帖、和室6帖) | ||
| 土地面積 | 128.68m² 公簿 | ||
| 建物面積 | 96.39m² 公簿 | ||
| 構造・規模 | 木造 2階建て | 築年月 | 2015年8月築 |
| バルコニー | 南東向き | 地目 | 宅地 |
| 用途地域 | 第一種低層住居専用地域 | 建ぺい率 | 50% |
| 容積率 | 100% | 都市計画 | 市街化区域 |
| 駐車スペース | 2台(カースペース:並列) | 現況 | 居住中 |
| 引渡時期 | 相談 | 権利種類 | 所有権 |
| 接道 | 南東側6M公道に接道 | 小学校区 | 常盤平第三小学校(300m) |
| 中学校区 | 常盤平中学校(800m) | 取引態様 | 媒介 |
| 設備 | 公営水道、本下水、都市ガス | ||
| その他制限事項 | 景観法 | ||
こだわり項目
整形地平坦地緑豊かな住宅地閑静な住宅地地盤調査済LDK15帖以上3面採光床下収納全居室収納複層ガラス浄水器ガスコンロシステムキッチンカウンターキッチン3口以上コンロトイレ2ヶ所温水洗浄便座浴室乾燥機浴室暖房追焚機能浴室1坪以上浴室に窓オートバスTVモニタ付インターホンスマートキー小学校800m以内陽当り良好通風良好フラット35Sに対応フラット35・S適合証明書保育園・幼稚園800m以内
- ※価格は物件の代金総額を表示しており、消費税が課税される場合は税込み価格です。(1,000円未満は切り上げ。)
税率は引き渡し時期により異なりますので、各物件の詳細につきましてはお問い合わせください。 - ※敷地権利が借地権のものは価格に権利金を含みます。
- ※制作中に内容が変更される場合もありますので、あらかじめご了承ください。
- ※購入の前には物件内容や契約条件についてご自身で十分な確認をしていただくようにお願いいたします。
- ※完成予想図はいずれも外構、植栽、外観等実際のものとは多少異なることがあります。
- ※CG合成の画像の場合、実際とは多少異なる場合があります。
周辺地図
周辺施設一覧
- ショッピングセンター
- スーパー
- コンビニ
- ドラッグストア
- ホームセンター
- 飲食店
- その他店舗
- 商店街
- 大学
- 専門学校
- 高校・高専
- 中学校
- 小学校
- 保育園
- 幼稚園
- 公民館・児童館
- 病院
- 郵便局
- 役所
- 図書館
- 金融機関
- 警察・消防
- 趣味・娯楽施設
- 公園・運動施設
- 周辺の街並み
- 駅
- その他
お問い合せ先
- 株式会社TKネクスト 松戸支店
- お電話でのお問い合わせは
047-710-6491「ホームページを見た」とお問い合わせください - 千葉県松戸市小金きよしケ丘2-5-1 ノック第3ビル2階・B
- 営業時間:9:30~18:30
- 定休日:毎週水曜日
- 免許番号:国土交通大臣(1)第10795号
- ホーム
- 中古住宅をエリアから探す
- 松戸市
- 常盤平西窪町
- 松戸市第1常盤平西窪町 中古戸建






